Aktuelle Nachricht

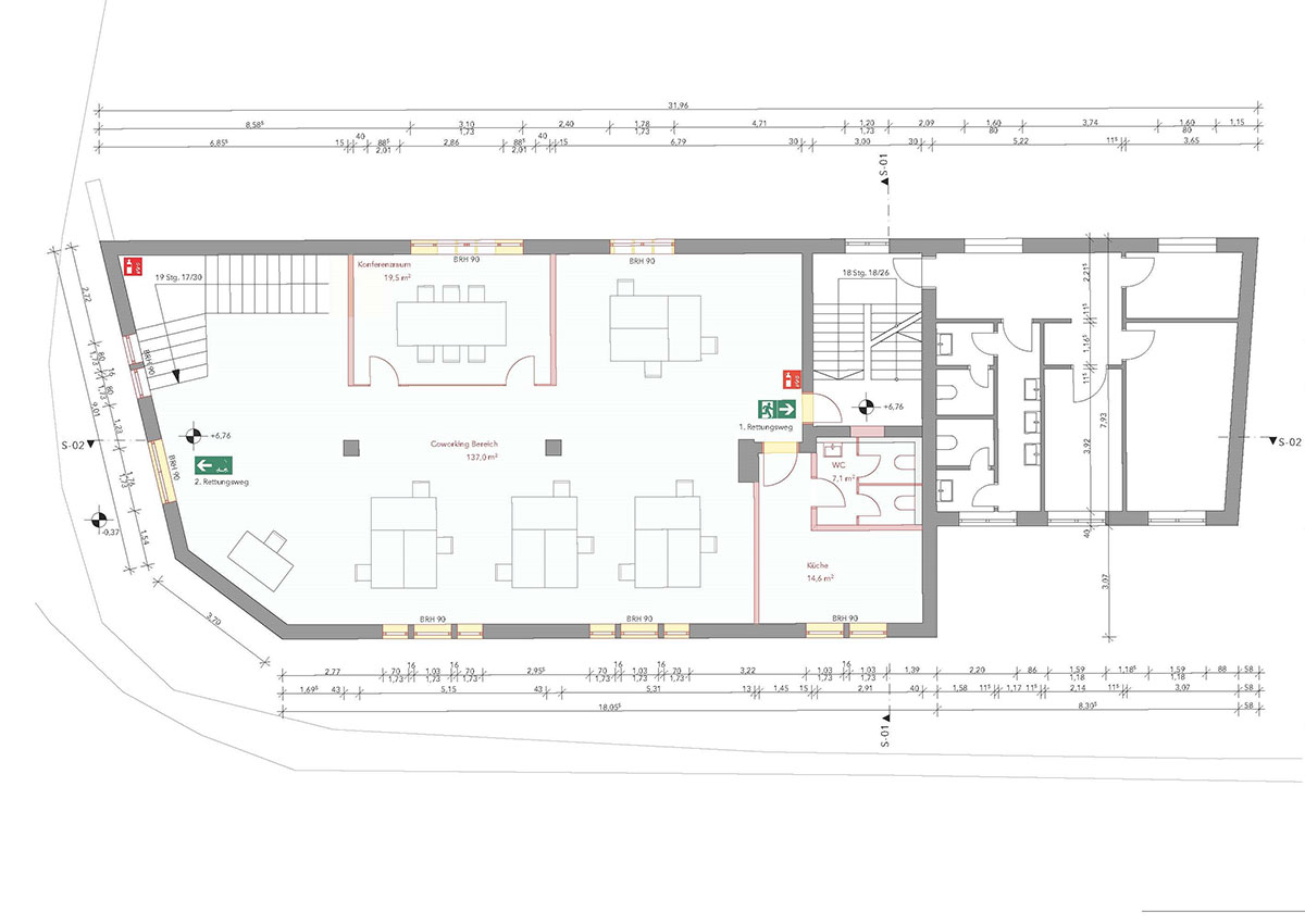
Rettungswege

Es gibt ein Problem. Die Rettungswege sind so nicht umsetzbar. Wir waren vor Ort mit dem stellv. Orts- Brandmeister FF Thedinghausen.

Wir haben eine Lösung gefunden.

Zurück zur Newsübersicht